Проект системы отопления —это проектная документация, которая содержит расчёты, обоснования и технические решения для обеспечения строительства, реконструкции или капитального ремонта объектов. Такой проект целесообразно заказывать для частного домостроения, офисов, магазинов и других объектов, где использование проекта регламентируется типом объекта.
Мы проектируем системы отопления для любого помещения:
- для квартир и частных домов.
- для офисов.
- для кафе и ресторанов.
| Цены на проектирование системы отопления | от 2,5 $/м2 | При реализации проекта с нами - бесплатно |
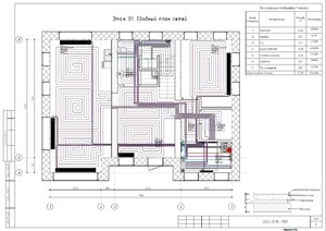
Пример реализованного проекта
Мы работаем следующим образом:
- Получаем от вас техническое задание.
- Связываемся с вами для обсуждения деталей заказа.
- Перед разработкой вы оплачиваете полную стоимость проекта по нашему прайсу.
- Делаем проект от 2 до 4 недель.
- Мы передаём вам проект и коммерческое предложение, вы согласовываете и подписываете акт приёма-передачи.
Какие работы проводятся инженером:
- Консультация по составлению технического задания (ТЗ).
- Определение тепловых потерь, изучение систем теплоизоляции и предложения по утеплению.
- Подбор оборудования согласно ТЗ, предоставленному клиентом.
- Выполнение теплогидравлических расчётов и формирование сшитой папки со всеми страницами проекта системы теплоснабжения.
- Формирование спецификации с указанием использованных материалов.
Что вы получите:
Сшитая папка с оформленными листами проекта, подписями ответственных лиц и печатями организации содержит следующие разделы:- Общие данные.
- Планы систем теплоснабжения для каждого этажа с проектированием и расчётом системы (радиаторной и тёплых полов).
- Аксонометрический вид системы отопления.
- Детализация сложных узлов систем теплоснабжения.
- Планы автоматизации.
- Спецификация оборудования.
- Спецификация материалов.
- Технические характеристики оборудования.
- Коммерческое предложение с подробным расчётом оборудования и материалов
